Johnny B Goode by Clayton Tempo

Please note: This 3D Tour may not be the model on our lot. Options and variations may apply.

New Home

Johnny B Goode by Clayton Tempo

bedroom icon

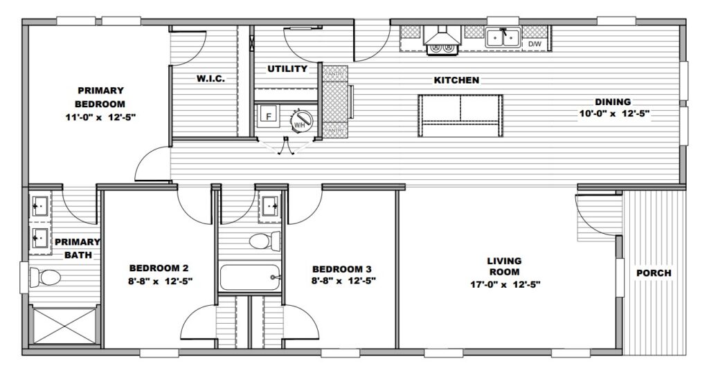
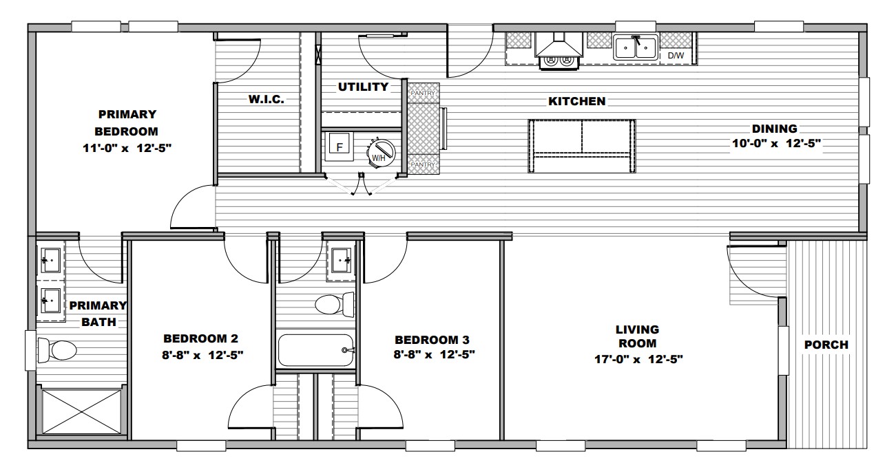
3 Bedrooms

square feet

1369 sq.ft.

003-house-plan

2 Bathrooms

dimensions

28 ft. x 52 ft.

Features

End Living Area, Front Loaded, Porch

Pricing

For Pricing please contact us at 616-534-3400

Additional Information

Manufacturer

Clayton Middlebury

Model

Johnny B Goode

Inventory #

2852-32-2

Floor Plan

Tempo-2852-32-2-Johnny-B-Goode.jpg

Features

Interested In this Home?