2362 Fiji by Clayton Epic Adventure

Displayed On Lot

New Home

2362 Fiji by Clayton Epic Adventure

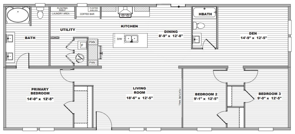
Check out this thoughtfully designed floorplan featuring a spacious den – perfect for a home office, second living area, or easily converted to a 4th bedroom to fit your needs. The primary bedroom is elevated with transom windows, bringing in natural light. This spacious floorplan offers a kitchen island, perfect for gathering and a coffee bar for the perfect way to start your morning. This home is a smart choice for anyone looking for flexibility, functionality, and style!

This home can be placed in a manufactured home community or on private property. You can also add a garage, porch, deck and so much more! Visit our Home Center to go over all the options to create your perfect affordable home!

bedroom icon

3 or 4+ Bedrooms

square feet

1580 sq.ft.

003-house-plan

2 Bathrooms

dimensions

28 ft. x 60 ft.

Features

Pricing

For Pricing please contact us at 616-534-3400

Additional Information

Manufacturer

Clayton Wakarusa

Model

Fiji

Inventory #

2362

Floor Plan

Fiji Floorplan

Features

Interested In this Home?